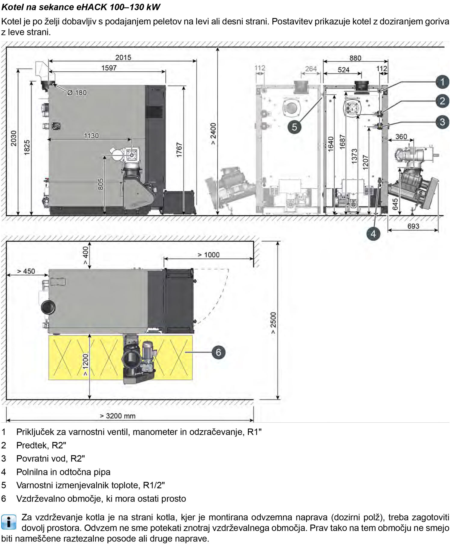
Kotel na sekance ETA eHack
Les je domač in naraven vir energije, zato so kotli na sekance še posebej dobra naložba za ogrevalne sisteme. Cenovno ugoden energent, ki je na dosegu roke, zagotavlja varčno in udobno ogrevanje. Kotli izpolnjujejo vse predpise za pridobitev nepovratnih sredstev iz strani Eko sklada.
Preberi večPošlji povpraševanje
Pošljite brezplačno povpraševanje in pridobite dodatne informacije o izdelku
Pomoč pri nakupu
Če potrebujete pomoč pri nakupu ali imate vprašanje v zvezi z izdelki, nas lahko pokličete ali se obrnete na naše partnerje.
- brezplačen prvi zagon (brez elektro kabliranja)
- najsodobnejši regulacijski sistem, ki vam zagotavlja enostavno spreminjanje parametrov preko velikega zaslona na dotik
- izredno učinkovito delovanje in visoki izkoristki (do 94,3%)
- zagotovljena izjemna varnost s patentiranim enoprekatnim celičnim kolesom
- upravljanje in nadzor kotla je lahko tudi preko pametnega telefona ali tabličnega računalnika. Po želji vam kotel pošilja tudi e-pošto.
- 5 let garancije (na vodni del kotla), (na gibljive in električne dele 3 leta)
- strokovna podpora od idejne zasnove do izvedbe, z možnostjo brezplačnega ogleda objekta
Les je dejansko naše najstarejše gorivo, a hkrati tudi najmodernejše. Sodoben razvoj kotlov na sekance - ETA eHack je tako pripomogel k najučinkovitejšemu načini ogrevanja z lesno biomaso. Danes tudi vemo, da ogrevanje s fosilnimi gorivi nima prihodnosti, saj oskrba dolgoročno ni zagotovljena. V popolnem nasprotju pa je les, ki je cenejša, lokalna in trajnostna surovina, poleg tega pa s sodobnim načinom izgorevanja ne obremenjuje ozračja kot fosilna. Kotli na sekance ETA eHack so tako zagotovo dobra naložba v prihodnost.
Kupujete več kot samo kotel
Z odločitvijo za nakup kotla na sekance ETA eHack se odločate tudi za trajnostni razvoj. Podjetje ETA, ne samo, da je usmerjena v nenehen razvoj proizvodov, svojo odgovornost širi tudi na druga področja. Ima polnilnice za električna vozila, ki se napajajo iz lastnega fotovoltaičnega sistema. Skrb za naravo je njihova prioriteta, zato tudi neprestano stremijo k najučinkovitejšim načinom ogrevanja. Zato je kotel na sekance ETA eHack več kot samo kotel, saj s številnimi patenti in najsodobnejšo tehnologijo krmiljenja zagotavlja varčen, učinkovit, zanesljiv in okolju prijazen način ogrevanja.
Kotel na sekance ETA eHack
- nazivne moči kotla: 20 kW, 25 kW, 32 kW, 45 kW, 50 kW, 60 kW, 70 kW, 80 kW, 100 kW, 110 kW, 120 kW, 130 kW, 140 kW, 150 kW, 160 kW, 170 kW, 180 kW, 200 kW, 220 kW, 240 kW
- popolno izgorevanje se kaže v izredno visokem izkoristku kotla (izkoristek do 94,3%)
- kotel je idealen za večje kmetije in podjetja
- delovanje kotla je popolnoma avtomatizirano
- vgrajeni številni patenti, dajejo kotlu svojo edinstvenost
- enostavno upravljanje in spreminjanje parametrov preko velikega zaslona na dotik
- upravljanje kotla je mogoče tudi preko pametnega telefona ali tabličnega računalnika
- k kotlu na sekance je možna dogradnja recirkulacije dimnih plinov in izločevalnika trdih delcev
- inteligentna tehnika v zgorevalni komori omogoča visoko stopnjo učinkovitosti kotla na sekance in hkrati poskrbi za nizke temperature dimnih plinov
- poseben sistem čiščenja toplotnega izmenjevalnika
- izjemno velika posoda za pepel, ki jo je možno odvažati s transportnim vozičkom
- kotel je opremljen z ogrevalnimi komponentami, ki so potrebne za učinkovito in varčno ogrevanje (lambda sonda, sesalni ventilator…)
- 5 let garancije (na vodni del kotla), (na gibljive in električne dele 3 leta)
- za brezhibno delovanje skrbi servisno-montažerka mreža po celotni Sloveniji
Merilna poročila skladna s standardom EN 303-5 so dosegljiva na zahtevo.

1 Talni mešalni disk: glede na velikost skladiščnega prostora je mogoče izbrati talni mešalni disk s premerom od 1,5 do 4 m in listnimi vzmetmi ali pri 4,5 do 6,0 m s pregibnimi ročicami.
2 Zgib za prosti tek: če se zaradi blokade v dovodu goriva polž vrti vzvratno, zgib odklopi mešalni krožnik s polža in tako zaščiti listne vzmeti.
3 Odprti kanal korita: zaradi velikega preseka kanala, progresivnega polža in posebne geometrije korita se tudi grobi sekanci premikajo tiho, z malo obrabe in energetsko varčno.
4 Fleksibilni modularni sistem: iznos goriva je mogoče prilagoditi gradbenim danostim. Montaža je enostavna in hitra, komponent pa ni treba rezati ali variti, saj jih preprosto spojite z močnimi profili gredi.
5 Motorji z zobniškim gonilom: poganjajo celoten transportni sistem, vključno z mešalom. Z aktivnim nadzorom porabe toka regulacija takoj prepozna, če transport porablja preveč moči, kar pomeni, da je nekje prišlo do blokade. Smer vrtenja polža se nato obrne do trikrat, da se razrahlja material.
6 Krogelni spoj pri vpadnem jašku: skrbi za fleksibilno povezavo med transportnim sistemom in kotlom. Naklon in kot se lahko tako prilagodita prostorskim razmeram. Vgrajeno tesnilo poskrbi za čisto delovanje brez izstopanja prahu.
7 Patentiran enoprekatni kanal celičnega kolesa: zanesljivo preprečuje povratni ogenj in tako poskrbi za visoko stopnjo varnosti. Velika komora s premerom 18 cm se zaradi samodejne zaustavitve celičnega kolesa polni samo v mirovanju. Zaradi tega deluje še toliko bolj učinkovito, varčuje z energijo in se malo obrablja. Poganja se skupaj z dozirnim polžem. Utrjen nož s protinožem odreže predolge dele goriva. Tako ni mogoče, da bi se kaj zataknilo.
8 Dvigajoči dozirni polž: zaradi velikega premera celo grobe sekance gladko dovaja v zgorevalno komoro.
9 Regulacija na dotik z mikroprocesorji: že z nekaj dotiki s prsti boste obvladali vse menije. Če je kotel povezan v splet, vas bo po e-pošti obvestil, ko bo na primer treba izprazniti zabojnik za pepel. Poleg tega lahko z brezplačno platformo meinETA pridete v stik s partnerskim omrežjem in uporabite brezplačne posodobitve programske opreme s priključkom USB.
10 Sesalni ventilator: ta ventilator je izjemno tih, a kljub temu poskrbi za podtlak v kotlu. Poleg tega regulira dovedene količine zraka in s tem poskrbi za varnost v kurilnici. Za razliko od običajnih sistemov ni potreben dodaten tlačni ventilator. S tem se prihrani energija!
11 Čiščenje toplotnega izmenjevalnika: Toplotni izmenjevalnik se samodejno čisti s turbolatorji. S tem je stalno zagotovljena visoka učinkovitost.
12 Primarna in sekundarna zračna loputa: obe loputi se z lambda sondo krmilita tako, da v zgorevalno komoro vedno pride idealna količina zraka.
13 Vroča zgorevalna komora: da bi iz zgorevalne komore povsem odstranila pepel, se rešetka samodejno zavrti za 360°, tako da pepel preprosto odpade. Zaradi tega tujki v pepelu, na primer žeblji ali kamni, ne vplivajo na delovanje.
14 Samodejno odpepeljevanje v zunanji zabojnik za pepel: polž za pepel transportira pepel iz toplotnega izmenjevalnika, zgorevalne komore in opcijskega izločevalnika delcev v zabojnik za pepel, kjer se stisne. To skrbi za dolge intervale odpepeljevanja in udobje.
15 Vgrajen dvig temperature povratnega voda: poskrbi za hitro, prostorsko varčno in cenovno ugodno montažo.
Vse na zaslonu:
Kotel na sekance ETA eHack brez dobrega regulacijskega sistema ne bi bil tako učinkovit kot je. Za to skrbi najsodobnejši ETAtouch regulacijski sistem. Brez kakršnega koli doplačila vam vgrajen regulator omogoča krmiljenje dveh ogrevalnih krogov, priprave sanitarne vode z bojlerjem ali modulom za svežo vodo in integracijo sončnih kolektorjev. Če pa želite lahko regulacijski sistem z dodatnimi moduli tudi nadgradite. Vsi kotli na sekance ETA eHAck so serijsko opremljeni s priključkom LAN. Če kotel povežete z omrežjem ga lahko krmilite tudi preko računalnika, tablice ali pametnega telefona.

Ko je varnost na prvem mestu - patentiran enoprekatni kanal celičnega kolesa
Patentiran enoprekatni kanal celičnega kolesa zagotavlja popolno zaporo med zgorevalno komoro in zalogovnikom goriva. Tako v sistem doziranja sekancev ne more vstopiti vroč plin iz zgorevalne komore s čimer se prepreči nevarnost požara.
Patentirano enoprekatno celično kolo je podjetje ETA razvilo samo. Prevzame lahko grobe sekance P31S (prej G50). Ker isti motor poganja enoprekatni kanal celičnega kolesa in dozirni polž je poraba moči minimalna.

Inteligentna tehnika v zgorevalni komori
Gorivo se iz strani dozira na segmentno vrtljivo rešetko. Šamotna zgorevalna komora z usmerjenim dovodom zraka zagotavlja visoko temperaturo zgorevanja in s tem idealen izkoristek goriva. Segmentna rešetka se zavrti za 360°, ko material povsem izgori. Vsi tujki, žeblji, kamni padejo na polž za pepel, ki se nahaja spodaj. S pomočjo patentiranega strgala, ki se nahaja nad zgorevalno komoro se pepel povsem samodejno odstrani, kar še dodatno poveča učinkovitost kotla.
Zaščita pred čezmernim polnjenjem
To je pomemben varnosti ukrep, ki skrbi, da v zgorevalni komori ni nikoli več goriva, kot ga lahko izgori. Tudi, če je kotel hladen ali pa uporabljen moker, težko vnetljiv material ne pride do prenapolnitve kotla. Senzorsko krmiljeno uravnavanje žerjavice vedno poskrbi za pravilno količino goriva. To je še posebej velika prednost pri alternativnih gorivih, kot so peleti ali zelo suhi sekanci.
Vedno čist izmenjevalnik zagotavlja najboljši izkoristek
Toplotni izmenjevalnik v kotlu na sekance ETA eHack se popolnoma avtomatsko čisti. Posebni sistem čiščenja toplotnega izmenjevalnika zagotavlja vedno čiste stene toplotnega izmenjevalnika in hkrati skrbi, da lebdeči pepel prosto vrtinčno pade navzdol. Padajoči pepel se zbira na dnu kotla, od koder se s posebnim sistemom premikajočih se tal pomika proti transportnemu polžu za pepel. Tako ostane toplotni izmenjevalnik vedno čist. Zato ETA kotli na sekance dosegajo izredno visoke izkoristke, hkrati pa so minimizirani intervali vzdrževanja in posledično tudi stroški za čiščenje in servisiranje kotla.
Izločevalnik delcev – premišljeno izkoriščen naravni pojav
S pomočjo elektrode v izpušnem kanalu se delci, ki lebdijo v izpušnih plinih, naelektrijo in ionizirajo. Usedejo se na notranjo steno izločevalnika, zaradi česar več ne morejo z izpušnimi plini uhajati skozi dimnik. Izločevalnik se med odpepeljevanjem čisti povsem samodejno. Prah pa se skupaj s preostalim pepelom transportira v zaboj za pepel. Izločevalnik tudi pri slabem gorivu poskrbi za nizke emisije prahu in to pri minimalni porabi električnega toka. Izločevalnik delcev je mogoče vgraditi naknadno.



| Kotel na sekance | Enota | 20 | 25 | 32 | 45 | 50 |
| Območje nazivne ogrevalne moči za sekance M25 BD 150 (W25-S160) | kW | 5,9 - 19,9 | 7,6 - 25,4 | 7,6 - 32 | 7,6 - 45 | 14,9 - 49,9 |
| Območje nazivne ogrevalne moči za pelete | kW | --- | 7,5 - 25,4 | 7,5 - 32 | 7,5 - 45 | 14,9 - 49,9 |
| Izkoristek sekancev iz jelovine pri delni / nazivni obremenitvi | % | 91,2 / 94,0 | 92,9 / 94,6 | 92,9 / 94,6 | 92,9 / 94,7 | 93,3 / 94,7 |
| Izkoristek peletov pri delni / nazivni obremenitvi | % | --- | 93,4 / 94,6 | 93,4 / 94,3 | 93,4 / 93,7 | 93,4 / 93,6 |
| Dimenzije Š x G x V | mm | 710 x 1430 x 1610 | ||||
| Teža z dozirnim polžem celičnega kolesa / brez dozirnega polža celičnega kolesa | kg | 830 / 712 | ||||
| Količina vode | l | 153 | ||||
| Prosta preostala črpalna višina (pri △T 20 °C) za delovanje vmesnega zbiralnika | mWS/m3/h | 5,5 / 0,86 | 5,2 / 1,08 | 4,1 / 1,38 | 2,8 / 1,92 | 2,0 / 2,13 |
| Prostornina posode za pepel | | | 52 | ||||
| Masni pretok izpušnih plinov pri delni / nazivni obremenitvi | g/s | 4,6 / 12,7 | 5,4 / 14,8 | 5,4 / 19 | 5,4 / 25,2 | 5,6 / 27,8 |
| Vsebnost CO2 suhih izpušnih plinih pri delni / nazivni obremenitvi | % | 10,3 / 12,6 | 11,2 / 13,6 | 11,2 / 13,8 | 11,2 / 14,1 | 11,3 / 14,1 |
| Temperatura izpušnih plinov pri delni / nazivni obremenitvi | °C | ~80 / ~150 | ||||
| Zahtevani vlek dimnika | Pa | > 5 Pa Pri vleku dimnika nad 15 Pa je potreben omejevalnik vleka. | ||||
| Emisije ogljikovega monoksida (CO) s sekanci pri delni / nazivni obremenitvi | mg/MJ | 63 / 14 | 33 / 45 | 33 / 34 | 33 / 13 | 30 / 12 |
| mg/m3 pri 13% O2 | 93 / 21 | 49 / 67 | 49 / 51 | 49 / 19 | 45 / 17 | |
| Emisije ogljikovega monoksida (CO) s peleti pri delni / nazivni obremenitvi | mg/MJ | --- | 20 / 25 | 20 / 19 | 20 / 6 | 20 / 6 |
| mg/m3 pri 13% O2 | --- | 30 / 38 | 30 / 28 | 30 / 8 | 30 / 8 | |
| Emisije prahu s sekanci pri delni / nazivni obremenitvi | mg/MJ | 3 / 9 | 4 / 4 | 4 / 4 | 4 / 5 | 4 / 5 |
| mg/m3 pri 13% O2 | 5 / 13 | 6 / 5 | 6 / 6 | 6 / 7 | 6 / 8 | |
| Emisije prahu s peleti pri delni / nazivni obremenitvi | mg/MJ | --- | 7 / 3 | 7 / 3 | 7 / 3 | 7 / 3 |
| mg/m3 pri 13% O2 | --- | 10 / 5 | 10 / 5 | 10 / 4 | 10 / 5 | |
| Nezgoreli ogljikovodiki (CxHy) s sekanci pri delni / nazivni obremenitvi | mg/MJ | 2 / < 1 | 2 / < 1 | 2 / < 1 | 2 / < 1 | < 1 / < 1 |
| mg/m3 pri 13% O2 | 3 / < 1 | 2 / 1 | 2 / < 1 | 2 / < 1 | < 1 / < 1 | |
| Nezgoreli ogljikovodiki (CxHy) s peleti pri delni / nazivni obremenitvi | mg/MJ | --- | 1 / < 1 | 1 / < 1 | 1 / < 1 | < 1 / < 1 |
| mg/m3 pri 13% O2 | --- | 2 / < 1 | 2 / < 1 | 2 / < 1 | < 1 / < 1 | |
| Odjemna električna moč pri sekancih pri delni / nazivni obremenitvi (= vrednosti z integriranim izločevalnikom za drobne delce) | W | 52 / 74 (72/94) | 56 / 83 (76/103) | 56 / 94 (76/114) | 56 / 121 (76/141) | 57 / 124 (87/154) |
| Odjemna električna moč pri peletih pri delni / nazivni obremenitvi (= vrednosti z integriranim izločevalnikom za drobne delce) | W | --- | 44 / 63 (64/83) | 44 / 71 (64/91) | 44 / 84 (64/104) | 46 / 92 (76/122) |
| Odjemna električna moč pri obratovalni pripravljenosti | W | 12 | ||||
| Najvišji dopustni delovni tlak | bar | 3 | ||||
| Nastavitveno območje temperature | °C | 70 - 85 | ||||
| Najvišja dopustna delovna temperatura | °C | 95 | ||||
| Razred kotla | 5 v skladu s standardom EN 303-5:2012 | |||||
| Primerna goriva | Sekanci ISO 17225-4, P16S-P31S (G30-G50), največ 35% vode; peleti ISO 17225-2-A1, ENplus-A1 | |||||
| Električni priključek | 400 V AC / 50 Hz / 16 A / 3P+N+PE | |||||
| Napotki za uporabo | ne kondenzira | |||||
Pridržujemo si pravico do tehničnih sprememb in napak.
| Kotel na sekance | Enota | 60 | 70 | 80 |
| Območje nazivne ogrevalne moči za sekance M25 BD 150 (W25- S160) | kW | 17,9 - 59,9 | 20,9 - 69,9 | 23,2 - 79,9 |
| Območje nazivne ogrevalne moči za pelete | kW | 17,9 - 59,9 | 20,9 - 69,9 | 23,2 - 85 |
| Izkoristek sekancev iz jelovine pri delni / nazivni obremenitvi | % | 94,1 / 94,7 | 94,9 / 94,6 | 95,7 / 94,6 |
| Izkoristek peletov pri delni /nazivni obremenitvi | % | 93,4 / 93,5 | 93,3 / 93,3 | 93,3 / 93,1 |
| Dimenzije Š x G x V | mm | 770 x 1455 x 1826 | ||
| Teža z dozirnim polžem celičnega kolesa / brez dozirnega polža celičnega kolesa | kg | 1110 / 992 | ||
| Količina vode | l | 203 | ||
| Upornost na strani vode (△T 20 K) | mWs | 0,82 | 1,12 | 1,46 |
| Prosta preostala črpalna višina črpalke (pri △T = 20 K) za delovanje vmesnega zbiralnika | mWs | 4,5 | 3,7 | 2,5 |
| m3/h | 2,6 | 3 | 3,4 | |
| Prostornina posode za pepel | l | 52 | ||
| Masni pretok izpušnih plinov pri delni /nazivni obremenitvi | g/s | 11,5 / 32,8 | 13,5 / 38,3 | 14,9 / 43,8 |
| Vsebnost CO2 v suhih izpušnih plinih pri delni / nazivni obremenitvi | % | 11,4 / 14 | 11,4 / 13,9 | 11,5 / 13,9 |
| Temperatura izpušnih plinov pri delni / nazivni obremenitvi | °C | ~80 / ~150 | ||
| Zahtevani vlek dimnika | Pa | > 5 Pa Pri vleku dimnika nad 15 Pa je potreben omejevalnik vleka. | ||
| Emisije ogljikovega monoksida (CO) s sekanci pri delni / nazivni obremenitvi | mg/MJ | 24 / 9 | 19 / 7 | 13 / 4 |
| mg/m3 pri 13% O2 | 37 / 14 | 29 / 10 | 21 / 7 | |
| Emisije ogljikovega monoksida (CO) s peleti pri delni / nazivni obremenitvi | mg/MJ | 19 / 5 | 18 / 4 | 17 / 3 |
| mg/m3 pri 13% O2 | 29 / 7 | 28 / 6 | 26 / 4 | |
| Emisije prahu s sekanci pri delni / nazivni obremenitvi | mg/MJ | 4 / 6 | 5 / 6 | 5 / 7 |
| mg/m3 pri 13% O2 | 7 / 9 | 7 / 10 | 8 / 11 | |
| Emisije prahu s peleti pri delni / nazivni obremenitvi | mg/MJ | 7 / 4 | 6 / 5 | 6 / 6 |
| mg/m3 pri 13% O2 | 10 / 6 | 9 / 7 | 9 / 9 | |
| Nezgoreli ogljikovodiki (CxHy) s sekanci pri delni / nazivni obremenitvi | mg/MJ | < 1 / < 1 | < 1 / < 1 | < 1 / < 1 |
| mg/m3 pri 13% O2 | < 1 / < 1 | <1 / < 1 | < 1 / < 1 | |
| Nezgoreli ogljikovodiki (CxHy) s peleti pri delni / nazivni obremenitvi | mg/MJ | < 1 / < 1 | < 1 / < 1 | < 1 / < 1 |
| mg/m3 pri 13% O2 | < 1 / < 1 | < 1 / < 1 | < 1 / < 1 | |
| Odjemna električna moč pri sekancih pri delni / nazivni obremenitvi (= vrednosti z integriranim izločevalnikom za drobne delce) | W | 63 / 145 (93 / 175) | ||
| Odjemna električna moč pri peletih pri delni / nazivni obremenitvi (= vrednosti z integriranim izločevalnikom za drobne delce) | W | 59 / 140 (89 / 170) | ||
| Odjemna električna moč pri obratovalni pripravljenosti | W | 15 | ||
| Najvišji dopustni delovni tlak | bar | 3 | ||
| Nastavitveno območje temperature | °C | 70 - 85 | ||
| Najvišja dopustna delovna temperatura | °C | 95 | ||
| Razred kotla | 5 v skladu s standardom EN 303-5:2012 | |||
| Primerna goriva | Sekanci ISO 17225-4, P16S-P31S (G30-G50), največ 35% vode; peleti ISO 17225-2-A1, ENplus-A1 | |||
| Električni priključek | 400 V AC / 50 Hz / 16 A / 3P+N+PE | |||
| Napotki za uporabo | ne kondenzira | |||
Pridržujemo si pravico do tehničnih sprememb in napak.
| Kotel na sekance | Enota | 100 | 110 | 120 | 130 |
| Območje nazivne ogrevalne moči za sekance M25 BD 150 (W25-S160) | kW | 29,9 - 99,9 | 32,9 - 109,9 | 35,9 - 119,9 | 38,9 - 128,9 |
| Območje nazivne ogrevalne moči za pelete | kW | 29,9 - 99,9 | 32,9 - 109,9 | 35,9 - 119,9 | 38,9 - 129,9 |
| Izkoristek sekancev iz jelovine pri delni / nazivni obremenitvi | % | 95,1 / 93,8 | 94,8 / 93,4 | 94,6 / 93 | 94,3 / 92,6 |
| Izkoristek peletov pri delni / nazivni obremenitvi | % | 92,8 / 93 | 92,4 / 93 | 92 / 92,9 | 91,6 / 92,9 |
| Dimenzije Š x G x V | mm | 922 x 1764 x 1825 | |||
| Teža z dozirnim polžem celičnega kolesa / brez dozirnega polža celičnega kolesa | kg | 1447 / 1329 | |||
| Količina vode | l | 272 | |||
| Upornost na strani vode (△T = 20 K) | mWs | 0,778 | 0,941 | 1,121 | 1,331 |
| Prosta preostala črpalna višina črpalke (pri △T = 20 K) za delovanje vmesnega zbiralnika | mWs | 4,5 | 3,8 | 3,1 | 2,5 |
| m3/h | 4,3 | 4,7 | 5,1 | 5,5 | |
| Prostornina posode za pepel | l | 94 | |||
| Masni pretok izpušnih plinov pri delni / nazivni obremenitvi | g/s | 18,1 / 54,5 | 20,3 / 61,7 | 22,4 / 68,9 | 24,6 / 76,1 |
| Vsebnost CO2 v suhih izpušnih plinih pri delni / nazivni obremenitvi | % | 11,6 / 13,8 | 11,7 / 13,8 | 11,8 / 13,7 | 11,9 / 13,7 |
| Temperatura izpušnih plinov pri delni / nazivni obremenitvi | °C | ~70 / ~130 | |||
| Zahtevani vlek dimnika | Pa | > 5 Pa Pri vleku dimnika nad 15 Pa je potreben omejevalnik vleka. | |||
| Emisije ogljikovega monoksida (CO) s sekanci pri delni / nazivni obremenitvi | mg/MJ | 24 / 3 | 29 / 3 | 35 / 3 | 35 / 3 |
| mg/m3 pri 13% O2 | 37 / 6 | 45 / 5 | 53 / 5 | 53 / 5 | |
| Emisije ogljikovega monoksida (CO) s peleti pri delni / nazivni obremenitvi | mg/MJ | 19 / 2 | 20 / 2 | 21 / 2 | 21 /2 |
| mg/m3 pri 13% O2 | 29 / 3 | 30 / 3 | 32 / 2 | 32 / 2 | |
| Emisije prahu s sekanci pri delni / nazivni obremenitvi | mg/MJ | 7 / 9 | 8 / 9 | 8 / 10 | 8 / 10 |
| mg/m3 pri 13% O2 | 10 / 13 | 12 / 14 | 13 / 16 | 13 / 16 | |
| Emisije prahu s peleti pri delni / nazivni obremenitvi | mg/MJ | 7 / 5 | 7 / 5 | 8 / 5 | 8 / 5 |
| mg/m3 pri 13% O2 | 10 / 8 | 11 / 8 | 12 / 7 | 12 / 7 | |
| Nezgoreli ogljikovodiki (CxHy) s sekanci pri delni / nazivni obremenitvi | mg/MJ | 1 / < 1 | 1 / < 1 | 1 / < 1 | 1 / < 1 |
| mg/m3 pri 13% O2 | < 1 / < 1 | < 1 / < 1 | < 1 / < 1 | < 1 / < 1 | |
| Nezgoreli ogljikovodiki (CxHy) s peleti pri delni / nazivni obremenitvi | mg/MJ | < 1 / < 1 | < 1 / < 1 | < 1 / < 1 | < 1 / < 1 |
| mg/m3 pri 13% O2 | < 1 / < 1 | < 1 / < 1 | < 1 / < 1 | < 1 / < 1 | |
| Odjemna električna moč pri sekancih pri delni / nazivni obremenitvi (= vrednosti z integriranim izločevalnikom za drobne delce) | W | 53 / 176 (152 / 263) | |||
| Odjemna električna moč pri peletih pri delni / nazivni obremenitvi (= vrednosti z integriranim izločevalnikom za drobne delce) | W | 49 / 124 (148 / 211) | |||
| Odjemna električna moč pri obratovalni pripravljenosti | W | 13 | |||
| Najvišji dopustni delovni tlak | bar | 3 | |||
| Nastavitveno območje temperature | °C | 70 - 90 | |||
| Najvišja dopustna delovna temperatura | °C | 95 | |||
| Razred kotla | 5 v skladu s standardom EN 303-5:2012 | ||||
| Primerna goriva | Sekanci ISO 17225-4, P16S-P31S (G30-G50), največ 35% vode; peleti ISO 17225-2-A1, ENplus-A1 | ||||
| Električni priključek | 400 V AC / 50 Hz / 16 A / 3P+N+PE | ||||
| Napotki za uporabo | ne kondenzira | ||||
Pridržujemo si pravico do tehničnih sprememb in napak.
| Kotel na sekance | Enota | 140 | 150 | 160 | 170 |
| Območje nazivne ogrevalne moči za sekance M25 BD 150 (W25-S160) | kW | 41,9 - 139,9 | 44,9 - 149,9 | 47,9 - 159,9 | 50,9 - 169,9 |
| Območje nazivne ogrevalne moči za pelete | kW | 41,9 - 139,9 | 44,9 - 149,9 | 47,9 - 159,9 | 50,9 - 169,9 |
| Izkoristek sekancev iz jelovine pri delni / nazivni obremenitvi | % | 95,1 / 93,5 | 95,3 / 93,8 | 95,6 / 94,1 | 95,9 / 94,4 |
| Izkoristek peletov pri delni / nazivni obremenitvi | % | 92,8 / 93,4 | 93,1 / 93,6 | 93,5 / 93,9 | 93,9 / 94,1 |
| Dimnezije Š x G x V | mm | 905 x 2073 x 1970 | |||
| Teža z dozirnim polžem celičnega kolesa / brez dozirnega polža celičnega kolesa | kg | 1800 / 1682 | |||
| Količina vode | I | 347 | |||
| Upornost na strani vode (△T = 20 K) | mWs | 0,66 | 0,76 | 0,87 | 0,98 |
| Prosta preostala črpalna višina črpalke (pri △T = 20 K) za delovanje vmesnega zbiralnika | mWs | 8,9 | 6,6 | 5,5 | 5 |
| m3/h | 6 | 6,4 | 6,8 | 7,2 | |
| Prostornina posode za pepel | Liter | 94 | |||
| Masni pretok izpušnih plinov pri delni / nazivni obremenitvi | g/s | 31 / 91 | 33 / 95 | 35 / 100 | 36 / 106 |
| CO2 v suhih izpušnih plinih pri delni / nazivni obremenitvi | % | 12,1 / 14 | 12,2 / 14,2 | 12,2 / 14,4 | 12,3 / 14,6 |
| Temperatura izpušnih plinov pri delni / nazivni obremenitvi | °C | ~70 / ~130 | |||
| Zahtevani vlek dimnika | Pa | > 5 Pa Pri vleku dimnika nad 15 Pa je potreben omejevalnik vleka. | |||
| Emisije ogljikovega monoksida (CO) s sekanci pri delni / nazivni obremenitvi | mg/MJ | 32 / 5 | 30 / 6 | 29 / 7 | 27 / 8 |
| mg/m3 pri 13% O2 | 49 / 8 | 46 / 9 | 44 / 11 | 42 / 13 | |
| Emisije ogljikovega monoksida (CO) s peleti pri delni / nazivni obremenitvi | mg/MJ | 20 / 2 | 20 / 2 | 20 / 2 | 20 / 2 |
| mg/m3 pri 13% O2 | 31 / 3 | 31 / 3 | 30 / 3 | 30 / 3 | |
| Emisije prahu s sekanci pri delni / nazivni obremenitvi | mg/MJ | 8 / 10 | 8 / 10 | 8 / 10 | 8 / 9 |
| mg/m3 pri 13% O2 | 13 / 15 | 13 / 15 | 13 / 15 | 13 / 14 | |
| Emisije prahu s peleti pri delni / nazivni obremenitvi | mg/MJ | 8 / 5 | 8 / 5 | 8 / 5 | 8 / 6 |
| mg/m3 pri 13% O2 | 12 / 8 | 12 / 8 | 12 / 8 | 12 / 9 | |
| Nezgoreli ogljikovodiki (CxHy) s sekanci pri delni / nazivni obremenitvi | mg/MJ | 1 / 1 | 1 / 1 | 1 / 1 | 1 / 2 |
| mg/m3 pri 13% O2 | 1 / 1 | 1 / 1 | 1 / 2 | 1 / 2 | |
| Nezgoreli ogljikovodiki (CxHy) s peleti pri delni / nazivni obremenitvi | mg/MJ | 1 / < 1 | 1 / < 1 | 1 / < 1 | 1 / < 1 |
| mg/m3 pri 13% O2 | 1 / < 1 | 1 / < 1 | 1 / < 1 | 1 / < 1 | |
| Odjemna električna moč pri sekancih pri delni / nazivni obremenitvi (= vrednosti z integriranim izločevalnikom za drobne delce) | W | 80 / 201 (179 / 288) | |||
| Odjemna električna moč pri peletih pri delni / nazivni obremenitvi (= vrednosti z integriranim izločevalnikom za drobne delce) | W | 76 / 149 (175 / 236) | |||
| Odjemna električna moč pri obratovalni pripravljenosti | W | 15 | |||
| Najvišji dopustni delovni tlak | bar | 3 | |||
| Nastavitveno območje temperature | °C | 70 - 90 | |||
| Najvišja dopustna delovna temperatura | °C | 90 | |||
| Razred kotla | 5 v skladu s standardom EN 303-5:2012 | ||||
| Primerna goriva | Sekanci ISO 17225-4, P16S-P31S (G30-G50), največ 35% vode; peleti ISO 17225-2-A1, ENplus-A1 | ||||
| Električni priključek | 400 V AC / 50 Hz / 16 A / 3P+N+PE | ||||
| Napotki za uporabo | ne kondenzira | ||||
| Kotel na sekance | Enota | 180 | 200 | 220 | 240 |
| Območje nazivne ogrevalne moči za sekance M25 BD 150 (W25-S160) | kW | 53,9 - 179,9 | 59,9 - 199,9 | 65,9 - 219,9 | 71,4 - 238 |
| Območje nazivne ogrevalne moči za pelete | kW | 53,9 - 179,9 | 59,9 - 199,9 | 65,9 - 219,9 | 71,9 - 239,9 |
| Izkoristek sekancev iz jelovine pri delni / nazivni obremenitvi | % | 96,1 / 94,7 | 96,6 / 95,2 | 97,1 / 95,8 | 97,6 / 96,3 |
| Izkoristek peletov pri delni / nazivni obremenitvi | % | 94,3 / 94,4 | 95 / 94,9 | 95,7 / 95,3 | 96,5 / 95,8 |
| Dimenzije Š x G x V | mm | 1076 x 2073 x 1970 | |||
| Teža z dozirnim polžem celičnega kolesa / brez dozirnega polža celičnega kolesa | kg | 2100 / 1982 | |||
| Količina vode | | | 434 | |||
| Upornost na strani vode (△T = 20 K) | mWs | 0,83 | 1,03 | 1,24 | 1,46 |
| Prosta preostala črpalna višina črpalke (pri △T = 20 K) za delovanje vmesnega zbiralnika | mWs | 6,5 | 5,5 | 4 | 2,5 |
| m3/h | 7,7 | 8,5 | 9,4 | 10,2 | |
| Prostornina posode za pepel | Liter | 94 | |||
| Masni pretok izpušnih plinov pri delni / nazivni obremenitvi | g/s | 41 / 120 | 45 / 130 | 48 / 139 | 51 / 148 |
| CO2 v suhih izpušnih plinih pri delni / nazivni obremenitvi | % | 11,1 / 13,2 | 11,2 / 13,4 | 11,2 / 13,7 | 11,3 /13,9 |
| Temperatura izpušnih plinov pri delni / nazivni obremenitvi | °C | ~70 / ~130 | |||
| Zahtevani vlek dimnika | Pa | > 5 Pa Pri vleku dimnika nad 15 Pa je potreben omejevalnik vleka. | |||
| Emisije ogljikovega monoksida (CO) s sekanci pri delni / nazivni obremenitvi | mg/MJ | 26 / 9 | 23 / 11 | 20 / 13 | 17 / 15 |
| mg/m3 pri 13% O2 | 40 / 14 | 35 / 17 | 31 / 21 | 27 / 23 | |
| Emisije ogljikovega monoksida (CO) s peleti pri delni / nazivni obremenitvi | mg/MJ | 19 / 2 | 19 / 2 | 18 / 2 | 18 / 2 |
| mg/m3 pri 13% O2 | 29 / 3 | 29 / 3 | 28 / 3 | 27 / 3 | |
| Emisije prahu s sekanci pri delni / nazivni obremenitvi | mg/MJ | 8 / 9 | 8 / 9 | 8 / 9 | 8 / 8 |
| mg/m3 pri 13% O2 | 13 / 14 | 13 / 14 | 13 / 13 | 13 / 13 | |
| Emisije prahu s peleti pri delni / nazivni obremenitvi | mg/MJ | 8 / 6 | 7 / 6 | 7 / 6 | 7 / 7 |
| mg/m3 pri 13% O2 | 11 / 9 | 11 / 9 | 11 / 10 | 11 / 10 | |
| Nezgoreli ogljikovodiki (CxHy) s sekanci pri delni / nazivni obremenitvi | mg/MJ | 1 / 2 | 1 / 2 | 1 / 3 | 1 / 3 |
| mg/m3 pri 13% O2 | 1 / 2 | 1 / 3 | 1 / 4 | 1 / 4 | |
| Nezgoreli ogljikovodiki (CxHy) s peleti pri delni / nazivni obremenitvi | mg/MJ | 1 / < 1 | 1 / < 1 | 1 / <1 | 1 / < 1 |
| mg/m3 pri 13% O2 | 1 / < 1 | 1 / < 1 | 1 / < 1 | 1 / < 1 | |
| Odjemna električna moč pri sekancih pri delni / nazivni obremenitvi (= vrednosti z integriranim izločevalnikom za drobne delce) | W | 126 / 473 (390 / 743) | |||
| Odjemna električna moč pri peletih pri delni / nazivni obremenitvi (= vrednosti z integriranim izločevalnikom za drobne delce) | W | 78 / 227 (358 / 487) | |||
| Odjemna električna moč pri obratovalni pripravljenosti | W | 17 | |||
| Najvišji dopustni delovni tlak | bar | 3 | |||
| Nastavitveno območje temperature | °C | 70 - 90 | |||
| Najvišja dopustna delovna temperatura | °C | 95 | |||
| Razred kotla | 5 v skladu s standardom EN 303-5:2012 | ||||
| Primerna goriva | Sekanci ISO 17225-4, P16S-P31S (G30-G50), največ 35% vode; peleti ISO 17225-2-A1, ENplus-A1 | ||||
| Električni priključek | 400 V AC / 50 Hz /16 A / 3P+N+PE | ||||
| Napotki za uporabo | ne kondenzira | ||||
Pomoč pri nakupu
Če potrebujete pomoč pri nakupu ali imate vprašanje v zvezi z izdelki, nas lahko pokličete ali se obrnete na naše partnerje.
Za prijavo na e-novice v spodnji obrazec vpišite vaše ime in e-naslov.
Kontakt
- Telefon: +386 3 42 78 132, +386 3 42 88 604
- Fax: 03 42 88 622, 03 42 88 623
- E-Mail: buderus-bosch@kovintrade.si
Naslov
KOVINTRADE d.d. Celje
3001 Celje, P.P. 1040
Mariborska Cesta 7, Slovenija
